Home > Classifieds

Submit new advert Edit ad or upload photo Pay for your advert View by category Browse all adverts Search ads Keyword Alert Scams, fraud & internet safety


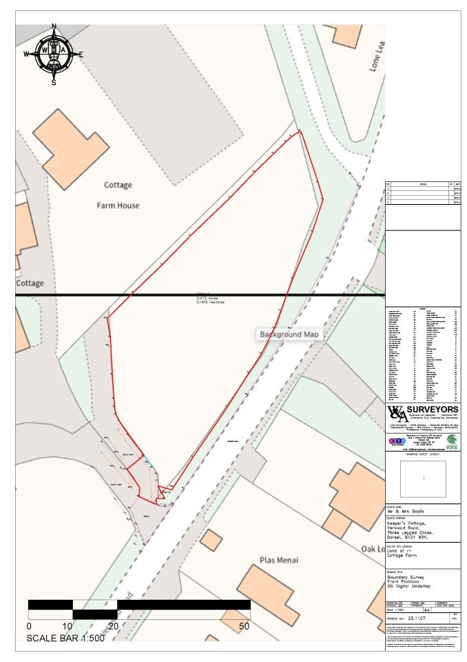
Small Paddock for Sale excellent investment opportunity.
Category:
Equestrian Property Offered
Photo for ad 188888
Advert No:
188888
Posted:
07/03/2026
Location:
Jean Baylis
Three Legged Cross
Dorset
07776815568
E-Mail Advertiser



Description

Paddock for sale, approximately half an acre at 0.473 acres. Excellent ground which drains well. Various uses - agricultural, horticultural, allotment, dog training, pony paddock. Good investment opportunity for future development subject to planning permission. Residential location bordering bridleway and with direct road access for vehicles. All mains directly available for application from suppliers - Mains drains, water, electricity, gas.This paddock is not suitable as a mobile home or caravan site and no planning permission currently exists.
Professional Site Surveys, viewings by appointment. Communicate directly with the land owner.

Offers in the region of £38,750.00.

Edit or Delete
  Link: www.nfed.co.uk/ad.php?ref=188888



Terms of Use  &  Privacy Notice
www.nfed.co.uk
Connecting the central southern equestrian community since 1999.
Thank you for being part of it!

© NFED Classifieds. All rights reserved.